


+16Set on a flat 613sqm (more or less) freehold site in Mixed Housing Urban zoning, 37 Garus Avenue presents a compelling opportunity for developers, land-bankers or those ready to take on their next project.
Offered alongside neighbouring 35 Garus Avenue, this is a rare chance to secure one or both properties, opening up greater flexibility and scale for future development.
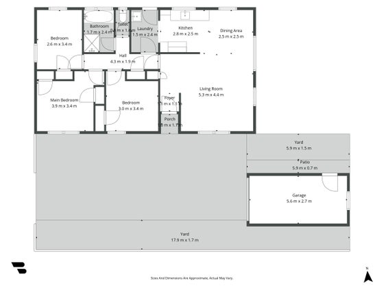
The existing home offers 3 bedrooms, 1 bathroom and a garage. While the home is in its original condition, it provides a holding option while you plan your next move.
Bring your builder, planner and specialist advice to explore the full potential of this site. With zoning supporting higher density, there are multiple pathways to add value (subject to council approval).
Positioned close to local schools, transport and key amenities, this location continues to see strong demand.
Secure one or both sites and maximise the opportunity.

Our agents are experts on all things in the property market, if you haven't found what you're looking for, please enquire with the listing agent now to have all of your property questions answered.
Contact us and have your questions answered.
Use the download button below to view all available documents for this property.